Jan Steenlaan 33
- Vraagprijs
- € 375.000,- k.k.
- Type
- Woonhuis
- Soort
- eengezinswoning
- Type woonhuis
- tussenwoning
- Bouwjaar
- 1984
- Kamers
- 5
- Slaapkamers
- 4
- Woonopp.
- 103 m²
- Energielabel
- B
Interesse in deze woning?
Tulp Makelaars Ede - Barneveld
mrxre#ghycznxrynnef.ay
www.tulpmakelaars.nl
06-82065417
Omschrijving
Ruime tussenwoning met praktische indeling, verrassend veel opbergruimte én tuin op het zuiden!
Welkom in deze fijne tussenwoning, gelegen in de geliefde en kindvriendelijke wijk Maandereng. Deze woning biedt niet alleen een heerlijke woonplek, maar ook volop mogelijkheden om er helemaal jouw thuis van te maken. Met veel verborgen opbergruimte, een zonnige tuin én een praktische indeling is dit een ideale woning voor (jonge) gezinnen of stellen die graag wat extra ruimte willen.
Ligging
De wijk Maandereng staat bekend om haar groene en rustige karakter, met volop speeltuintjes voor de kinderen en wandelmogelijkheden in de buurt.
Binnen enkele minuten bereik je scholen, supermarkten en andere dagelijkse voorzieningen. Ook de bereikbaarheid is uitstekend: met de auto ben je zo op de uitvalswegen richting de A12 en A30, en het openbaar vervoer is goed geregeld met bushaltes en station Ede-Wageningen in de nabijheid. Kortom: een prettige en praktische woonomgeving voor jong en oud.
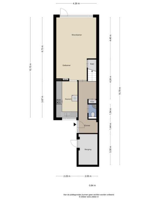
Indeling van de woning
Begane grond
Bij binnenkomst tref je een ruime, lichte entree met toegang tot het toilet, de meterkast en de trap naar de eerste verdieping.
De gehele begane grond is voorzien van een lichte plavuizenvloer, wat zorgt voor een strakke en onderhoudsvriendelijke uitstraling.
De ruime woonkamer geniet van veel natuurlijk licht dankzij de grote raampartij en de deur naar de zonnige achtertuin.
De L-vormige keuken is uitgerust met de nodige inbouwapparatuur en biedt veel praktische opbergruimte _ perfect voor de kookliefhebber!
Eerste verdieping
Op de eerste verdieping vind je drie ruime slaapkamers, een badkamer en extra kastruimte.
De badkamer is een echte eyecatcher: voorzien van een heerlijk hoek-bubbelbad waar je kunt ontspannen na een lange dag, of juist heerlijk wakker kunt worden in de ochtend.
Tweede verdieping
Via een vaste trap bereik je de tweede verdieping. Hier vind je een vierde slaapkamer en een berging die is ingericht als wasruimte. Dankzij de slimme indeling en extra bergruimte kun je hier alle kanten op.
Vliering
En alsof dat nog niet genoeg is, beschikt de woning ook over een vliering _ ideaal voor het opbergen van seizoensspullen, koffers of kerstdecoratie.
Tuin
De achtertuin is gelegen op het zuiden, wat betekent dat je de hele dag door kunt genieten van de zon.
's Ochtends start je de dag met een kop koffie in de opkomende zon, terwijl je 's avonds geniet van een gezellige barbecue of diner in de avondzon.
De grote laurierboom zorgt voor de benodigde privacy én eventueel gewenste schaduw op een warme zomerdag.
De tuin is fraai aangelegd en beschikt over een mooie vijver met prachtige vissen _ een rustgevend uitzicht vanuit de woonkamer én een uniek detail dat gewoon achterblijft bij de woning!
Samenvattend
-Leuke tussenwoning met veel potentie
-Vier slaapkamers en volop opbergruimte
-Zonnige tuin op het zuiden met vijver
-Gelegen in de groene, kindvriendelijke wijk Maandereng
-Dicht bij scholen, winkels en openbaar vervoer
Benieuwd geworden?
Maak snel een afspraak voor een bezichtiging en ontdek zelf de ruimte, het licht en de mogelijkheden die deze woning te bieden heeft!
Kenmerken
Overdracht
- Vraagprijs
- € 375.000,- k.k.
- Status
- Verkocht onder voorbehoud
- Aanvaarding
- in overleg
Bouw
- Type
- Woonhuis
- Soort
- eengezinswoning
- Type woonhuis
- tussenwoning
- Bouwjaar
- 1984
- Onderhoud binnen
- goed
- Onderhoud buiten
- goed
Tuin
- Type
- achtertuin, voortuin
- Hoofd tuin
- achtertuin
- Ligging
- zuid
- Oppervlakte
- 39 m²
Woonhuis
- Kamers
- 5
- Slaapkamers
- 4
- Verdiepingen
- 4
- Woonopp.
- 103 m²
- Inhoud
- 394 m³
- Perceelopp.
- 122 m²
- Ligging
- in woonwijk
Energie
- Energie label
- B
- Verwarming
- c.v.-ketel
Garage
- Type
- geen garage
Berging
- Type
- aangebouwd steen







































